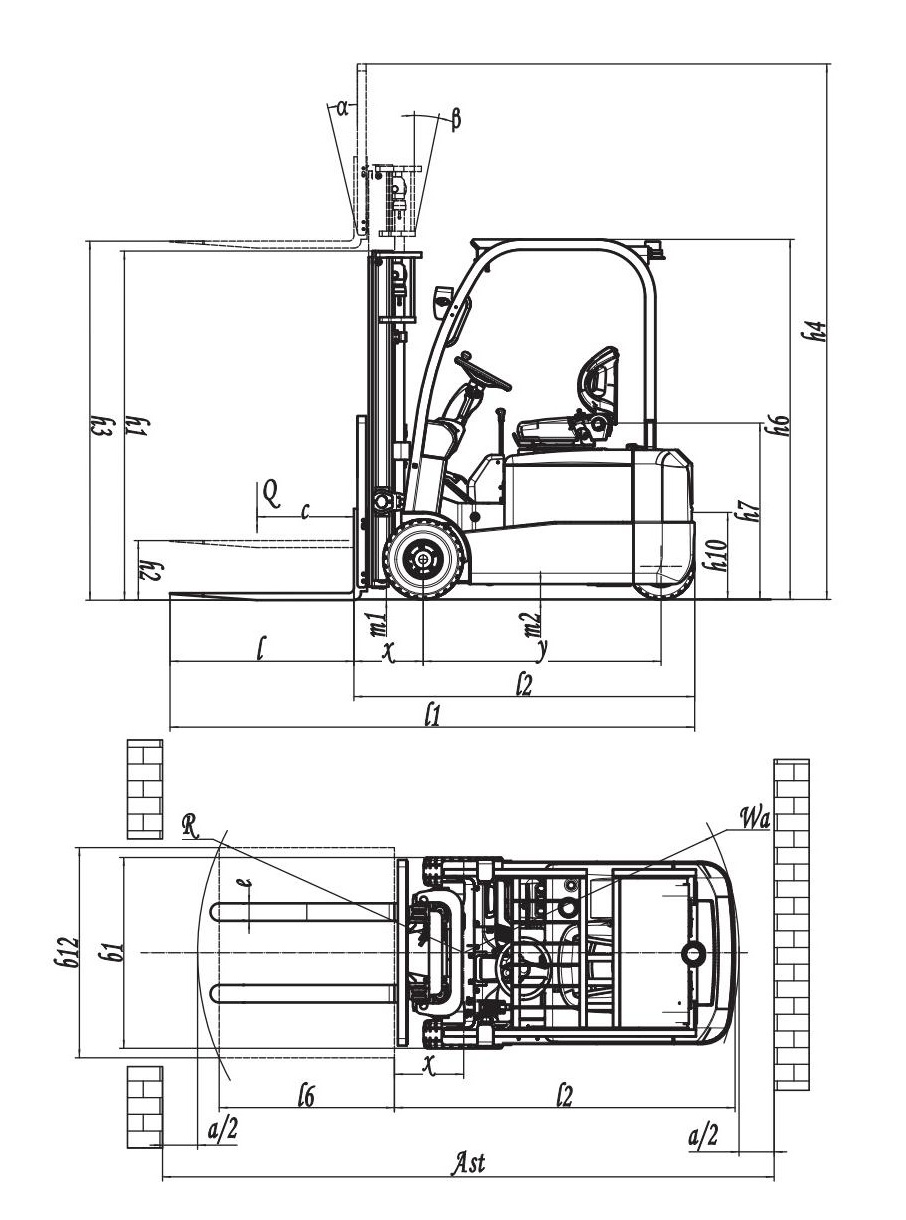
Electric Counterbalance Truck
1.5/1.8/2.0T Electric Counterbalance Forklift
Rated Capacity
1500kg
Load Center Distance
500mm
Lift Height
3000mm-6000mm





Phone